MENU

HOUSE & LAND PACKAGE

Contact

GJ Gardner

Will Green

New Home Sales Consultant

021 685 856

Visit Website Visit Website

Signature Homes

HOUSE & LAND PACKAGE

Lot 17

Enquiries over $2,299,000

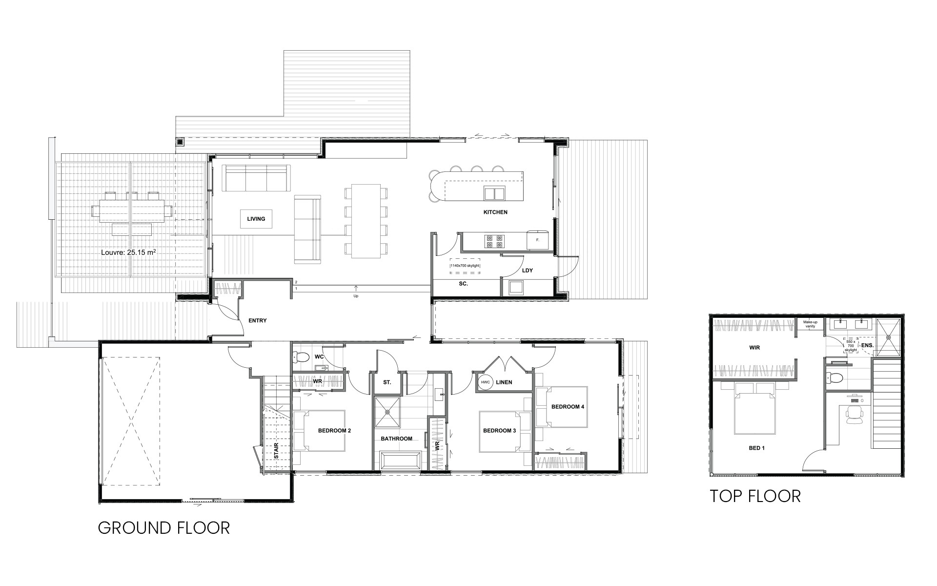
Land Area: 757m2 Floor Area: 242m2

4 Beds3 Baths2 Garages

Wake up to a better view at Hobbs Bay

Lot 17 offers four spacious bedrooms, including three conveniently located on the main level - perfect for families and guests. The private upstairs master suite showcases ocean views, a generous walk-in wardrobe, and an ensuite. Designed for both style and functionality, the custom-made, open-plan kitchen includes a hidden scullery and laundry, while the living and dining area seamlessly extends to a covered outdoor space with a striking exterior feature wall for added privacy.